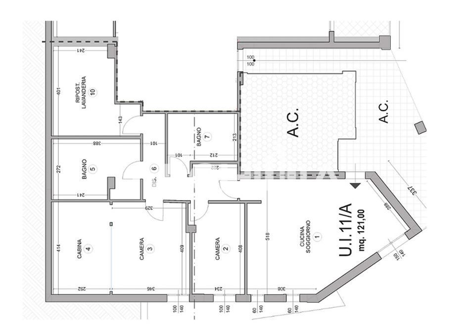
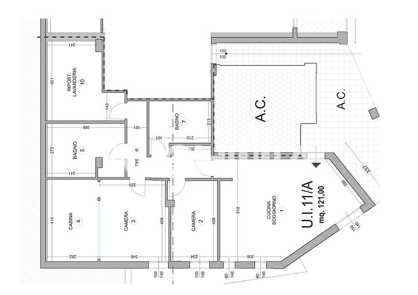
Rif. KS-V089 Appartamento piano terra nuovo mq. 121 circa in fase definitiva di ristrutturazione Dogana
In zona Dogana bassa, in fase definitiva di ristrutturazione, vendesi appartamento di mq. 121 circa, posto al piano terra di più ampia palazzina residenziale, così composto: Portico, ingresso su cucina e soggiorno, cameretta, camera matrimoniale con cabina armadio, un bagno, un ripostiglio/lavanderia, un secondo bagno. Posto auto condominiale.
Maggiori informazioni in agenzia.
Per visite ed informazioni contattare Alchimia Immobiliare.














