Rif. KS-V190 Nuova costruzione - Appartamento UI 5 di 128 mq circa piano secondo Borgo Maggiore
NUOVA COSTRUZIONE BORGO MAGGIORE
In bella zona residenziale di Borgo Maggiore proponiamo questo splendido appartamento (UI 5) di 128 mq piano secondo con 16,8 mq di balconi.
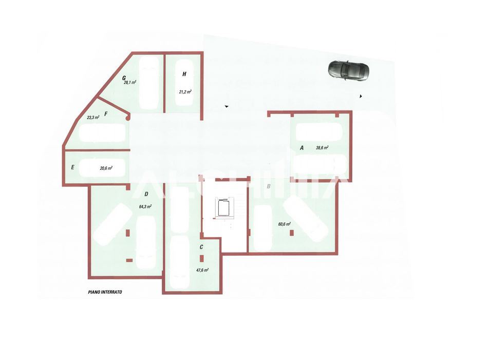
I Garage ed i Posti Auto sono acquistabili separatamente.






