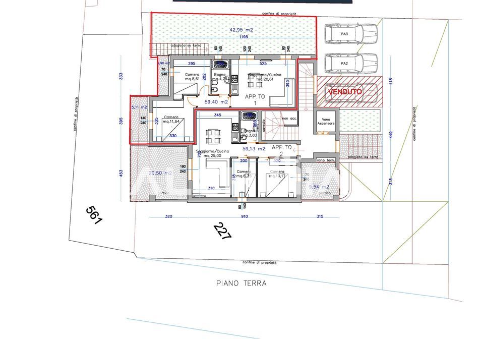
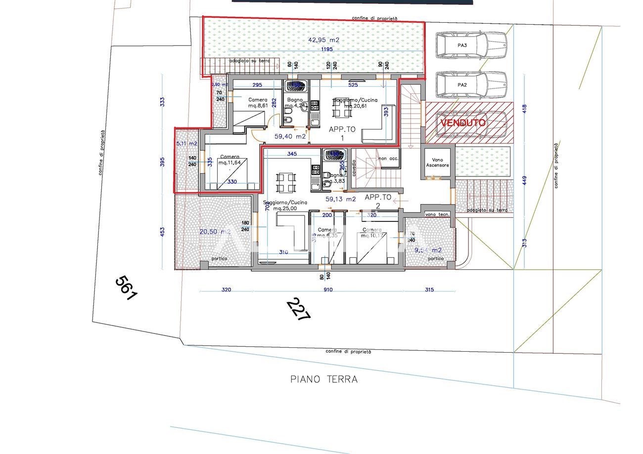
Rif. KS-V208 Appartamento piano terra UI 1 di 59 mq con giardino Dogana
Vendesi appartamento situato a Dogana, una delle zone più servite e richieste della Repubblica di San Marino.
L'appartamento è composto da ingresso su soggiorno e cucina abitabile, 2 camere con balcone ed 1 bagno. La proprietà vanta di un giardino privato di 42 mq circa. Inoltre vengono abbinati all'immobile un garage di 17 mq ed un posto auto. (prezzo non compreso a quello dell'appartamento.)
I vantaggi della posizione di questo immobile sono vicinanza a scuole, negozi, servizi e collegamenti.






